纽约艺术家成瑞娴的家
文化 | 地产
VIEW ALL
COLLAPSE
纽约的一片土地上,Emily 的家历经数年建造,如今静静落成。
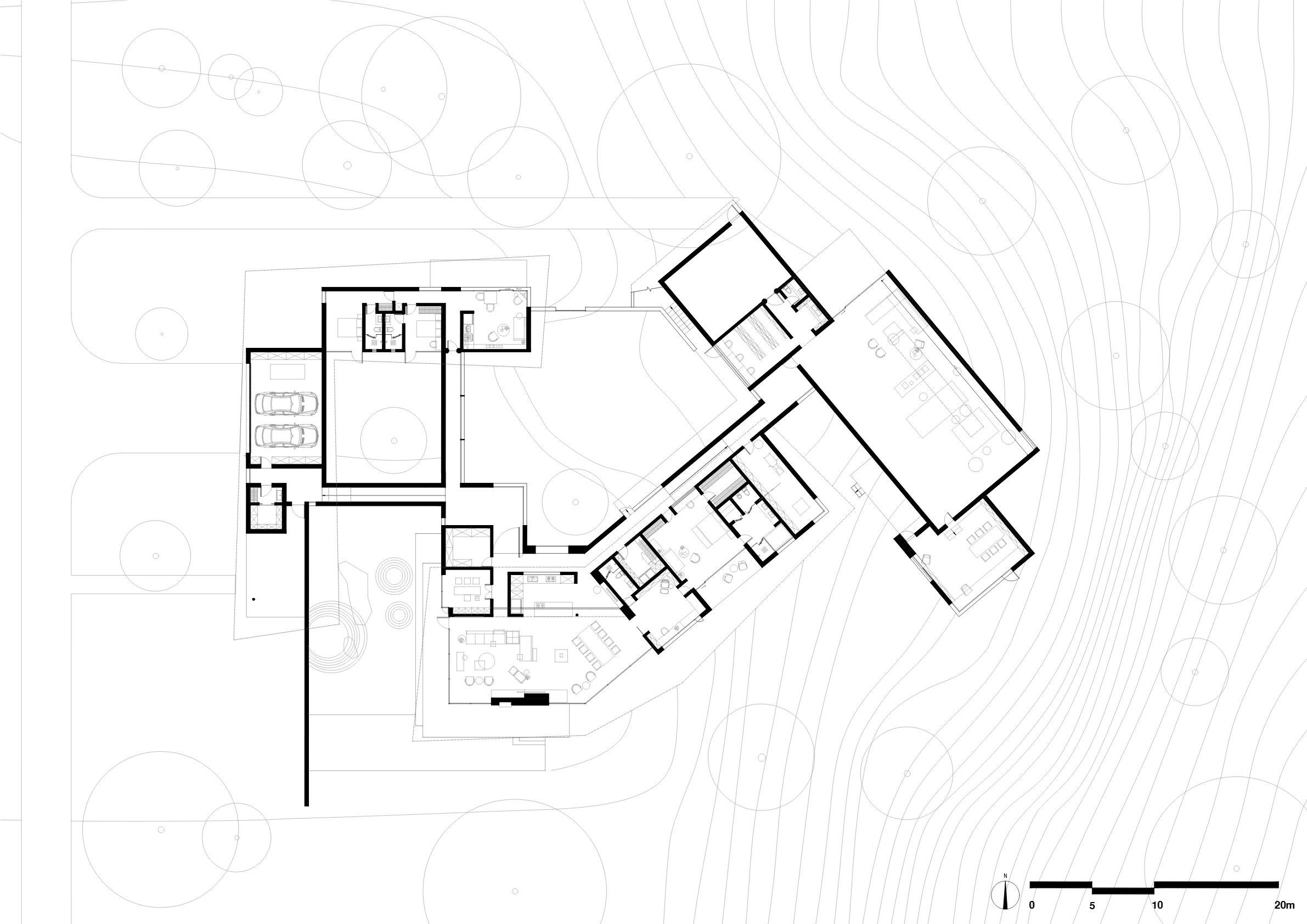
房子依然采用游园式设计,几个建筑体块自然穿插、连接,最大限度地保留了一草一木。它们围合出不同主题的人文庭院,因朝向不同,每一处庭院的风景也各不相同。
开窗的大小决定了光的进入方式。不同房间的亮度与明暗,也因此各不相同。屋顶被设计成曲折面,避开传统对称,也解决了冬季大雪的排雪需求。百年老树旁特意留出了一片平屋顶,可以在晴朗夜晚仰望月色与星辰。
混凝土既是墙体,也延伸为景观,恰到好处地挡住风与视线。工作室刷白色,卧室选浅色木头,这些材料随着季节流转,会慢慢“变老”。
Emily问我:“在打造这个家时,你觉得最重要的是什么?”
我回答:“怀着善意去连接这片场地,尊重万物本来的规律,是最重要的,再从人的五感出发,去酝酿空间中可以承载的各种情绪。”
如今,房子静静融入土地。每当阳光掠过墙面,树影轻摇庭院,这里的一切仿佛都在呼吸、生长。我想,这便是家应有的样子——它不仅是遮风挡雨的居所,更是一处能与日月对谈、与时光共老的天地。
—— 琚宾
